COOPERATIVA EN PELAYOS DE LA PRESA
                                COOPERATIVA EN PELAYOS DE LA PRESA

COOPERATIVA EN NAVAS DEL REY

La promoción se encuentra en la Avenida de Madrid del municipio de Navas del Rey,   a 38 km de la M-40 de circunvalación de Madrid. Es el último pueblo conectado por la autovía M-501, conocida como la "carretera de los pantanos", que facilita el acceso desde la capital hacia el Valle del Tiétar y las zonas de expansión natural de Madrid hacia el oeste.

 

En esta misma dirección, más próximo a Madrid por la autovía M-501, a 15 km de la M-40, se encuentra Brunete, un núcleo muy consolidado que presenta un notable déficit de oferta de viviendas, incluso a precios elevados, símbolo de las zonas tensionadas en el entorno de Madrid. Este contexto subraya la creciente demanda habitacional en el área de influencia de la M-501, destacando la relevancia estratégica de proyectos como el de Navas del Rey.

 

Características del Proyecto

Arquitectura moderna

Ubicación privilegiada: Las 33 viviendas están situadas en el límite del casco urbano, junto al Ayuntamiento, una ubicación que combina la cercanía al centro del pueblo con la tranquilidad de un entorno natural. El proyecto se organiza alrededor de una nueva Plaza de Santiago Fernández conectada con la plaza central de Navas del Rey, ofreciendo un espacio comunitario integrado y funcional.

 

Diseño arquitectónico: Las viviendas, de tipo dúplex asimilables a chalets adosados, con acceso desde la plaza, están diseñadas con un enfoque moderno y funcional. Incluyen cocinas semiabiertas al salón, una distribución con salones y habitaciones de amplias dimensiones en las que se prevé la posibilidad de disponer de despacho de trabajo, trasteros, etc., en propuesta ideal para familias modernas, y cuentan con porches ajardinados frente a las entradas, que proporcionan privacidad frente a la plaza pública arbolada y de acceso restringido.

Modelos de Viviendas: Tipo A

Las viviendas del Tipo A ocupan el frente sur de la parcela, en planta situada sobre los locales comerciales de la Avenida de Madrid.

 

Con un porche abierto a la Plaza de Santiago Fernández, ajardinada y de acceso restringido, disponen de salón con terraza hacia el sur y el campo, con cocina americana, despacho o dormitorio y baño en planta baja, y en planta alta dormitorio con baño y dormitorio principal en suite con terraza abierta hacia la iglesia y el campo.

 

SUPERFICIES UTILES    
P. BAJA              INTERIORES    EXTERIORES
Escalera                   9,30  
Salón                     23,40  
Cocina                    11,60  
Despacho               10,70  
Baño                       2,70  
Terraza                                         11,80

Patio entrada                                12,10
P. ALTA    
Escalera                  3,00  
Dormitorio 1          18,30  
Dormitorio 2          11,30  
Baño 1                    4,30  
Baño 2                    3,10  
Terraza                                         9,40
S. UTIL TOTAL    97,70              31,50

 

SUPERFICIE CONSTRUIDA   
P. BAJA
S. construida                         64,86
Terraza (50%)                         5,95
P. ALTA  
S. construida                         47,04
Terraza (50%)                         4,70
TOTAL CONST.                  122,15

Modelos de Viviendas: Tipo B

Las viviendas Tipo B son abiertas a la Calle Isabel la Católica, en duplex, con acceso que las eleva 1 m sobre la acera. Con salón, cocina americana y aseo en planta baja y dos dormitorios con un baño y terraza comun en planta alta.

 

SUPERFICIES UTILES (M2)
P. BAJA               INTERIORES    EXTERIORES
Salón                         26,25  
Cocina                        10,00  
Aseo                            1,50  
Patio entrada                               4,05
P. ALTA    
Distribuidor                  1,60  
Dormitorio 1               14,08  
Dormitorio 2               11,50  
Baño 1                         3,50  
Terraza                                       6,80
SUPERFICIE UTIL    68,43      10,85

 

SUPERFICIE CONSTRUIDA   (M2) 
P. BAJA
S. construida                   42,95
Patio entrada (50%)           2,03
P. ALTA  
S. construida                   36,76
Terraza (50%)                   3,40
TOTAL CONSTRUIDA     85,14

Modelos de Viviendas: Tipo C

Vivienda adosada en duplex abierta a la Plaza de Santiago Fernández. Se accede a través de un porche a una planta baja con salón, cocina americana y aseo. Por la escalera al fondo se sube a una planta alta con dormitorios con terraza con un baño y a un dormitorio principal en suite con terraza.

 

SUPERFICIES UTILES  (M2) 

P. BAJA                    INTERIORES  EXTERIORES
Salón                            25,30  
Cocina                          10,20  
Tendedero                                       4,00
Aseo                              1,50  
Patio entrada                                 21,35
P. ALTA    
Distribuidor                    1,55  
Dormitorio 1                 16,10  
Dormitorio 2                 14,15  
Dormitorio 3                 11,80  
Baño 1                           4,40  
Baño 2                           3,50  
Terraza                                          6,00
Terraza                                          5,90
S. UTIL TOTAL           88,50        27,35

 

 

SUPERFICIE CONSTRUIDA (M2)
P. BAJA
S. construida                 42,95
Tendedero(50%)              2,00
P. ALTA  
S. construida                 60,87
Terraza (50%)                5,75
TOTAL CONST.          111,57

Modelos de Viviendas: Tipo D

Vivienda abierta a la Plaza de Santigo Fernández, en una planta. Con acceso desde un porche amplio a salón con cocina americana y a dos dormitorios con dos baños, uno en suite, que se abren a un jardín propio para árboles o plantas.

Se dispone un acceso a un sótano o bodega con una superficie de 76,40 m2.

 

SUPERFICIES UTILES (M2)   
P. BAJA                     EXTERIORES  INTERIORES
Jardín                                               38,20
Patio entrada                                    23,30
Salón                          31,32  
Cocina                        11,95  
Tendedero                                          2,05
Armario                        0,60

Distribuidor                  1,70 
Dormitorio 1               16,20  
Dormitorio 2               13,25  
Baño 1                         4,30  
Baño 2                         3,75  
S. UTIL TOTAL          85,97            61,50

 

 

SUPERFICIE CONSTRUIDA  
P. BAJA
S. construida                       97,79
Tendedero(50%)                    1,02
TOTAL CONST.                   98,81

 

SOTANO                             76,40

Modelos de Viviendas: Tipo E

Vivienda de tres dormitorios, en planta alta respecto a la Plaza de Santiago Fernández, con salón, cocina americana y terraza en planta de acceso y tres dormitorios con dos baños, uno en suite. La planta alta situada bajo cubierta con terraza.

 

SUPERFICIES UTILES  (M2)
P. BAJA (1ª)          INTERIORES     EXTERIORES
Salón                         25,80  
Cocina                         9,50  
Terraza                                            9,70
P. ALTA (2ª)    
Distribuidor                 2,15  
Dormitorio 1              13,30

Dormitorio 2              11,90

Dormitorio 3               7,80

Baño 1                       4,90

Baño 2                       5,00
Terraza                                          15,40
S. UTIL TOTAL        80,35            25,10

 

 

SUPERFICIE CONSTRUIDA  (M2)
P. BAJA
S. construida                          42,26
Terraza (50%)                          4,85
P. ALTA  
S. construida                          54,47
Terraza (50%)                          7,70
P.p. z. comunes                        3,50
TOTAL CONST.                    112,78

Modelos de Viviendas: Tipo F

Viviendas de un dormitorio en planta alta respecto a la Plaza de Santiago Fernández. Salón, cocina americana, un dormitorio y  baño.

 

SUPERFICIES  UTILES    
P. BAJA (1ª)            INTERIORES    EXTERIORES
Salón+cocina              31,00  
Dormitorio                  12,80  
Baño 2                         3,40  
S. UTIL  TOTAL        47,20          

 

 

SUPERFICIE CONSTRUIDA  
P. BAJA
S. construida                         54,69

P.p. zonas comunes                 3,50
TOTAL CONST.                   58,19

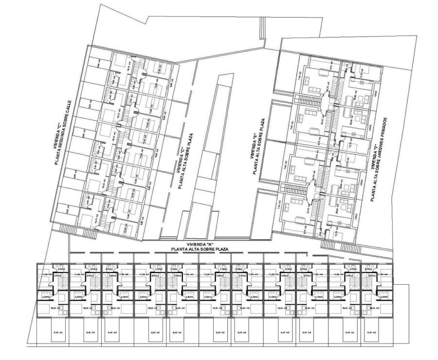
PLANTAS GENERALES. Planta segunda sobre la Plaza de Santiago Fernández.

Las viviendas tipo E tienen un nivel de planta tercera (bajo cubierta) sobre la plaza. 

En este plano se puede ver la disposición de la plaza, la zona arbolada y los jardines privados situados delante de las viviendas con acceso desde la plaza.

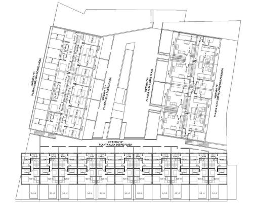
PLANTAS GENERALES. Planta primera sobre la Plaza de Santiago Fernández.

En este nivel están las plantas altas de los duplex tipo A y C así como la planta baja de la vivienda tipo E y la vivienda tipo F de un dormitorio.

PLANTAS GENERALES.                  Planta de la Plaza de Santiago Fernández

El primer nivel, la plaza conocida como de Santiago Fernández, se encuentra sobre el garaje y los comerciales, al nivel de la Plaza del Ayuntamiento con la que está conectada a través del pasadizo del Centro de Mayores.

En este nivel tienen acceso y la planta baja el resto de viviendas adosadas en duplex, desde el tipo A, con vistas hacia la Avenida de Madrid, y los tipos C, D, E y F con vistas hacia la plaza y hacia el exterior en plantas altas. Las viviendas A, C y D disponen de un pequeño jardín privado antes de la entrada.

La bajada al garaje se efectua por el nucleo central de ascensores y escaleras situado en la zona de árboles central de la plaza.

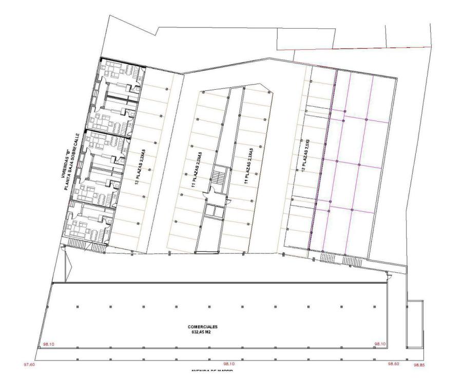
PLANTAS GENERALES.                    Planta nivel Avenida de Madrid y calle Isabel la Católica.

Al nivel de la Avenida de Madrid se encuentran locales comerciales donde está previsto un supermercado, el acceso al garaje de 47 plazas y con acceso desde la calle Isabel la Católica cinco viviendas en duplex del tipo B.

El acceso a la plaza se efectua mediante ascensores y escalera desde el núcleo central o por escaleras desde la Avenida o desde la calle.

Versión para imprimir | Mapa del sitio
© VPAU

Página web creada con IONOS Mi Web.